服務方案
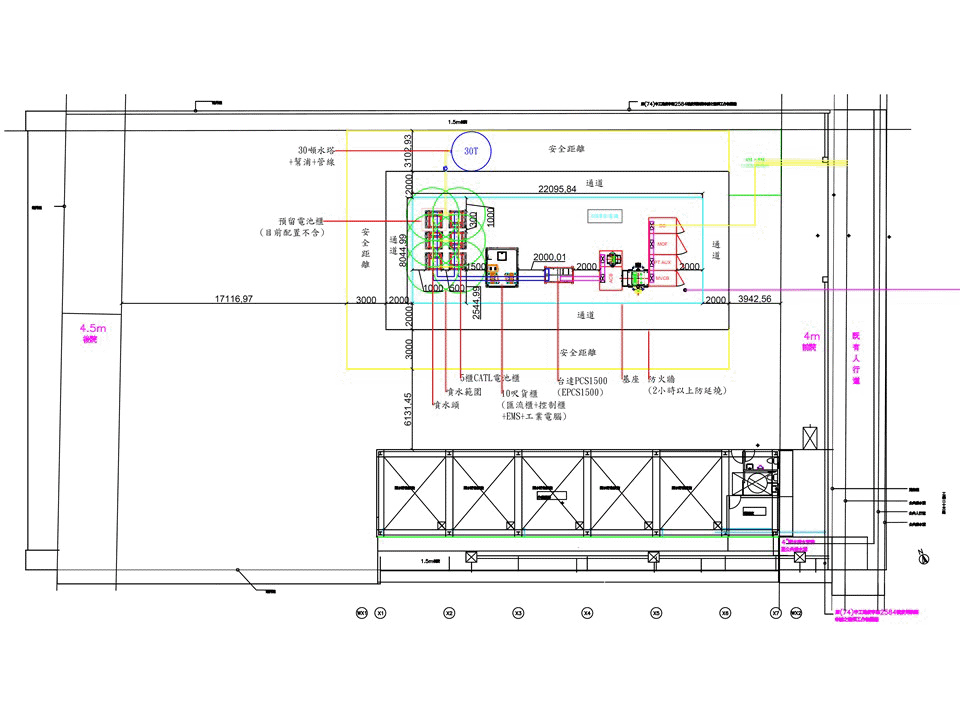
華城儲能案場
電池模組串聯安裝於電池櫃內做為充電與放電的功能,電池櫃並通過雙向 DC 模組與電網連接,提供DC集成櫃系統提供主電源及輔助用電電源,可以進行放電和充電的雙向控制。為客戶提供貨櫃儲能方案,並通過即時監控以及對電池系統進行安全管理及保護。
雙向逆變器(PCS;Power Conditioning System)實現DC與AC(交直流電能)雙向變換連接的裝置,提供電力功率調節。適用於儲能電池以充電和放電的形式與電網交換能量,並用以對電池進行充放、電的控制與管理,在EMS控制下時,能實現對電網負荷的「削峰填谷」以及快速的二次調頻,能為微網內的負荷提供穩定的電壓和頻率。
進行調節及傳輸電池櫃電能的設備主要依照EMS監控及評估的訊號傳入DC集成櫃中
提供電能升降壓,將電壓提升至可併網電壓等級所需之電力設備。
儲能系統須建置電力設備,使配電盤做為電力分配的設備並為儲能系統與電網之電力銜接,在高壓配電盤箱體內,提供儲能案場配電場所,穩定發電。
| 1 【電池模組櫃】 | 電池模組串聯安裝於電池櫃內做為充電與放電的功能,電池櫃並通過雙向 DC 模組與電網連接,提供DC集成櫃系統提供主電源及輔助用電電源,可以進行放電和充電的雙向控制。,為客戶提供貨櫃儲能方案,並通過即時監控以及對電池系統進行安全管理及保護。 |
| 2 【PCS系統】 | 雙向逆變器(PCS;Power Conditioning System)實現DC與AC(交直流電能)雙向變換連接的裝置,提供電力功率調節。適用於儲能電池以充電和放電的形式與電網交換能量,並用以對電池進行充放、電的控制與管理,在EMS控制下時,能實現對電網負荷的「削峰填谷」以及快速的二次調頻,能為微網內的負荷提供穩定的電壓和頻率。 |
| 3 【DC集成櫃】 | 進行調節及傳輸電池櫃電能的設備主要依照EMS監控及評估的訊號傳入DC集成櫃中 |
| 4 【儲能升壓系統】 | 提供電能升降壓,將電壓提升至可併網電壓等級所需之電力設備。 |
| 5 【高壓配電盤箱】 | 儲能系統須建置電力設備,使配電盤做為電力分配的設備並為儲能系統與電網之電力銜接,在高壓配電盤箱體內,提供儲能案場配電場所,穩定發電。 |











